一篇文章讓你看懂常用消防閥門工作原理
一、閥門概論
1、概念
閥門:用以控制流體流量、壓力和流向的裝置簡稱閥門。
被控制的流體可以是液體、氣體、氣液混合體或固液混合體。閥門通常由閥體、 閥蓋、閥座、 啟閉件(閥瓣、塞體、閘板、蝶板和隔膜等)、驅動機構(閥桿和帶動它運動的閥門驅動裝置)、密封件(填料、墊片等)和緊固件等組成。閥門的控制功能是依靠驅動機構或流體驅使啟閉件升降、滑移、旋擺或回轉運動以改變流道面積的大小來實現的。
2、閥門的主要參數
pn 公稱壓力(允許流體通過的最大的壓力)
dn 公稱直徑
tn 溫度范圍(允許流體的溫度范圍)
3、閥門使用前的檢查
檢查項目包括:
1)閥體內外表面有無砂眼、裂紋等缺陷;
2)閥座與閥體接合是否牢固,閥芯與閥座是否吻合,密封面有無缺陷;
3)閥桿與閥芯連接是否靈活可靠、閥桿有無彎曲,螺紋有無損壞、腐蝕;
4)填料、墊圈是否老化損壞;
5)閥門開啟是否靈活等。
閥門使用過程中常出現的問題
1)與管道連接處的法蘭、螺紋泄漏;
2)填料涵泄漏、腰墊泄漏及閥桿開不動;
3)閥芯與閥座間關不嚴形成內泄漏
4、閥門的應用
閥門在工業生產、生活的各行各業中都有非常廣泛的運用,是生活用水管道、工業流體管道必不可少的裝置。小到家庭自來水管道,大到三峽大壩、秦山核電站,甚至太空的神舟系列宇宙飛船、國際空間站都有閥門在中間起在至關重要的作用。有資料顯示,在100萬千瓦的核電站,閥門的價值要占核電站總投資的5%到10%,后期閥門維修維護的費用要占核電站維護成本的50%,可見閥門的重要性。
二、常用消防閥門工作原理介紹
常用的消防閥門有閘閥、截止閥、節流閥、儀表閥、柱塞閥、球閥、蝶閥、止回閥、遙控浮球閥、電磁閥,減壓閥 、過濾器、濕式報警閥等。
常用閥門工作原理介紹,如下:
(一)閘閥
閘閥是一種最常見的啟閉閥,利用閘板(即啟閉件,在閘板中啟閉件稱為閘板或閘門,閘座稱為閘板座)來接通(全開)或截斷(全關)管路中的介質。它不允許作為截流用,使用中應避免將閘板微量開啟,因高速流動的介質的沖蝕會加速密封面的損壞。雙德閘板在垂直于閘門座通道中心線的片面作為升降運動,象閘門一樣截斷管路中的介質,故稱做閘閥。
閘閥的種類 ,按密封面配置可分為楔式閘板式閘閥和平行閘板式閘閥 , 楔式閘板式閘閥又可分為:單閘極式、雙閘板式和彈性閘板式;平行閘板式閘閥可分為單閘板式和雙閘板式。按閥桿的螺紋位置劃分,可分為明桿閘閥和暗桿閘閥兩種。
工作原理
轉動手輪,通過手輪與閥桿的螺紋的進、退,提升或下降與閥桿連接的閥板,達到開啟和關閉的作用。

閘閥的優點:
1、流體阻力小 , 密封面受介質的忡刷和侵蝕小。
2、開閉較省力。
3、介質流向不受限制 , 不擾流、不降低壓力。
4、形體簡單 , 結構長度短,制造工藝性好,適用范圍廣。
閘閥的缺點:
1、密封面之間易引起沖蝕和擦傷,維修比較困難。
2、外形尺寸較大,開啟需要一定的空間,開閉時間長。
3、結構較復雜。
(二)截止閥
截止閥(stop valve,globe valve)的啟閉件是塞形的閥瓣,密封面呈平面或錐面,閥瓣沿閥座的中心線作直線運動。閥桿的運動形式,(通用名稱:暗桿),也有升降旋轉桿式,(通用名稱:明桿)截止閥是指關閉件(閥瓣)沿閥座中心線移動的閥門。 根據閥瓣的這種移動形式,閥座通口的變化是與閥瓣行程成正比例關系。由于該類閥門的閥桿開啟或關閉行程相對較短,而且具有非常可靠的切斷功能,又由于閥座通口的變化與閥瓣的行程成正比例關系,非常適合于對流量的調節。因此,這種類型的截流截止閥閥門非常適合作為切斷或調節以及節流用。
工作原理
截止閥,也叫截門,是使用最廣泛的一種閥門,它之所以廣受歡迎,是由于開閉過程中密封面之間摩擦力小,比較耐用,開啟高度不大,制造容易,維修方便,不僅適用于中低壓,而且適用于高壓。
截止閥的閉合原理是,依靠閥杠壓力,使閥瓣密封面與閥座密封面緊密貼合,阻止介質流通。
截止閥只許介質單向流動,安裝時有方向性。截止閥的結構 長度大于閘閥,同時流體阻力大,長期運行時,密封可靠性 不強。
優點
1、結構簡單,制造和維修比較方便。
2、工作行程小,啟閉時間短。
3、密封性好,密封面間磨擦力小,壽命較長。
4、 截止閥閥體的結構形式有直通式、直流式和直角式。直通式是最常見的結構,但其流體的阻力最大。直流式流體阻力較小,多用于含固體顆粒或粘度大的流體。直角式閥體多采用鍛造,適用于較小通經、較高壓力的的截止閥。
5、在開閉過程中密封面的摩擦力比閘閥小,耐磨。
6、通常只有一個密封面,制造工藝好,便于維修。
缺點
1、流體阻力大,開啟和關閉時所需力較大。
2、不適用于帶顆粒、粘度較大、易結焦的介質。
3、調節性能較差。
4、波紋管密封截止閥采用波紋管密封的設計,完全消除了普通閥門閥桿填料密封老化快易泄露的缺點,波紋管截止閥不但提高了使用能源效率,增加生產設備安全性,減少了維修費用及頻繁的維修保養,還提供了清潔安全的工作環境。
(三)節流閥
節流閥是通過改變節流截面或節流長度以控制流體流量的閥門。將節流閥和單向閥并聯則可組合成單向節流閥。節流閥和單向節流閥是簡易的流量控制閥,在定量泵液壓系統中,節流閥和溢流閥配合,可組成三種節流調速系統,即進油路節流調速系統、回油路節流調速系統和旁路節流調速系統。節流閥沒有流量負反饋功能,不能補償由負載變化所造成的速度不穩定,一般僅用于負載變化不大或對速度穩定性要求不高的場合。
節流閥具有以下特點:
1、構造較簡單,便于制造和維修,成本低。
2、調節精度不高,不能作調節使用。
3、密封面易沖蝕,不能作切斷介質用。
(四)蝶閥
蝶閥又叫翻板閥,是一種結構簡單的調節閥,同時也可用于低壓管道介質的開關控制的方式工作中的閥門蝶閥是指關閉件(閥瓣或蝶板)為圓盤,圍繞閥軸旋轉來達到開啟與關閉的一種閥,在管道上主要起切斷和節流作用。蝶閥啟閉件是一個圓盤形的蝶板,在閥體內繞其自身的軸線旋轉,從而達到啟閉或調節的目的。
優點
1、啟閉方便迅速、省力、流體阻力小,可以經常操作。
2、結構簡單,外形尺寸小,結構長度短,體積小,重量輕,適用于大口徑的閥門。
3、可以運送泥漿,在管道口積存液體最少。
4、低壓下,可以實現良好的密封。
5、調節性能好。
6、全開時閥座通道有效流通面積較大,流體阻力較小。
7、啟閉力矩較小,由于轉軸兩側蝶板受介質作用基本相等,而產生轉矩的方向相反,因而啟閉較省力。
8、密封面材料一般采用橡膠、塑料、故低壓密封性能好。
9、安裝方便。
10、操作靈活省力,可選擇手動、電動、氣動、液壓方式。
缺點
1、使用壓力和工作溫度范圍小。
2、密封性較差。
(五)球閥
啟閉件(球體)由閥桿帶動,并繞閥桿的軸線作旋轉運動的閥門。利用亦可用于流體的調節與控制,其中硬密封v型球閥其v型球芯與堆焊硬質合金的金屬閥座之間具有很強的剪切力,特別適用于含纖維、微小固體顆料等介質。
工作原理
球閥具有旋轉90度的動作,旋塞體為球體,有圓形通孔或通道通過其軸線。球閥在管路中主要用來做切斷、分配和改變介質的流動方向,它只需要用旋轉90度的操作和很小的轉動力矩就能關閉嚴密。球閥最適宜做開關、切斷閥使用,但近來的發展已將球閥設計成使它具有節流和控制流量之用,如v型球閥。
優點
1.流體阻力小,全通徑的球閥基本沒有流阻。
2.結構簡單、體積小、重量輕。
3.緊密可靠。它有兩個密封面,而且目前球閥的密封面材料廣泛使用各種塑料,密封性好,能實現完全密封。在真空系統中也已廣泛使用。
4.操作方便,開閉迅速,從全開到全關只要旋轉90°,便于遠距離的控制。
5.維修方便,球閥結構簡單,密封圈一般都是活動的,拆卸更換都比較方便。
6.在全開或全閉時,球體和閥座的密封面與介質隔離,介質通過時,不會引起閥門密封面的侵蝕。
7.適用范圍廣,通徑從小到幾毫米,大到幾米,從高真空至高壓力都可應用。
8.由于球閥在啟閉過程中有擦拭性,所以可用于帶懸浮固體顆粒的介質中。
缺點
加工精度高,造價昂貴,高溫中不易使用,如管道內有雜質,容易被雜質堵塞,導致閥門無法打開
(六)減壓閥
減壓閥是通過調節,將進口壓力減至某一需要的出口壓力,并依靠介質本身的能量,使出口壓力自動保持穩定的閥門。從流體力學的觀點看,減壓閥是一個局部阻力可以變化的節流元件,即通過改變節流面積,使流速及流體的動能改變,造成不同的壓力損失,從而達到減壓的目的。然后依靠控制與調節系統的調節,使閥后壓力的波動與彈簧力相平衡,使閥后壓力在一定的誤差范圍內保持恒定。
(七)止回閥
止回閥又稱單向閥或逆止閥,其作用是防止管路中的介質倒流。水泵吸水關的底閥也屬于止回閥類。啟閉件靠介質流動和力量自行開啟或關閉,以防止介質倒流的閥門叫止回閥。止回閥屬于自動閥類,主要用于介質單向流動的管道上,只允許介質向一個方向流動,以防止發生事故。
止回閥屬于一種自動閥門,其主要作用是防止介質倒流、防止泵及驅動電動機反轉,以及容器介質的泄放。止回閥還可用于給其中的壓力可能升至超過系統壓的輔助系統提供補給的管路上。
(八)安全閥
工作原理
zsfg型雨淋閥組主要由水源控制閥(蝶閥)、雨淋閥、手動應急裝置、自動滴水閥、排水球閥、供水側壓力表、控制腔壓力表等組成。 當有火災發生時,消防控制模塊聯動動作,打開電磁閥,通過控制腔的出口接通大氣壓,由于控制腔內進口的減壓裝置作用,使得控制腔內的壓力急劇下降,當控制腔內的壓力比供水壓力低到一定值時,作用在閥蓋底部向上的力大于杠桿作用在閥瓣上向下的力,雨淋閥的閥瓣被供水壓力打開,則水流入系統側進行滅火,控制腔內的壓力表由裝在保護區內的火災探測系統同時也就是雨淋閥閥瓣的驅動系統控制,它可以是電氣的、液壓的(濕式)、氣動的(干式)。
(九)信號閥
對于自動噴淋中,水流指示器前宜設信號閥。zsdf型消防信號蝶閥:用途:zsdf型消防信號蝶閥的頂部設有閥門啟閉電信號裝置,當閥門被誤關閉25%(全開度的4/1)時,電信號裝置便輸出被誤關閉的信號到消防控制中心。所以此蝶閥是消防自動噴水滅火系統的最佳配套產品。結構特點及工作原理:該蝶閥的電信號裝置設計蝸桿、蝸輪驅動裝置的頂部,并與閥桿直聯傳動,在精密全封閉的機電裝置內,設有閥門開啟度機械指示和進口電氣元件及防銹機件。輸出信號長期穩定可靠。
(十)濕式報警閥
只允許水單向流入噴水系統并在規定流量下報警的一種單向閥。
(十一)過濾閥
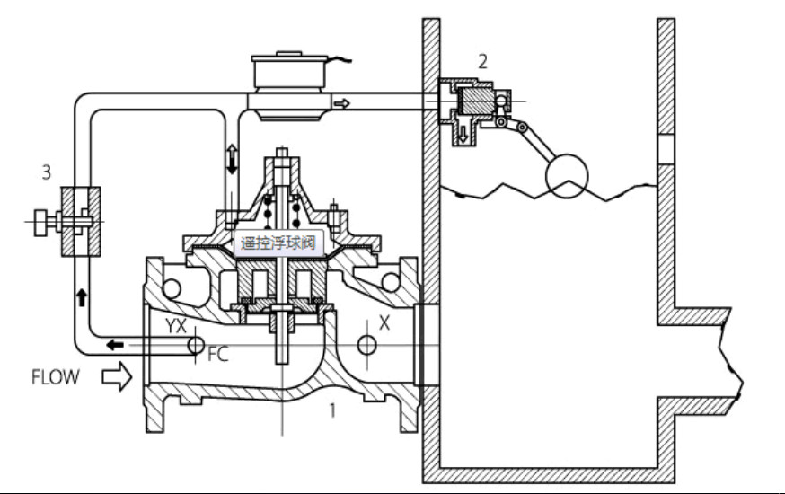
(十二)遙控浮球閥
遙控浮球閥結構
更多泵閥新技術,請觀看flowtech泵閥創新產品發布會。
flowtech泵閥創新產品發布會是2018年第7屆上海國際泵管閥展覽會同期開設的100多場行業高峰論壇會議中的一場,覆蓋化工、供排水、環保水處理、制藥等行業。2018年第7屆上海國際泵管閥展覽會將于2018年5月31日-6月2日在上海國家會展中心舉行,是目前國內最大規模的泵管閥展覽會,能提供全產業鏈一站式解決方案。
原文鏈接
















